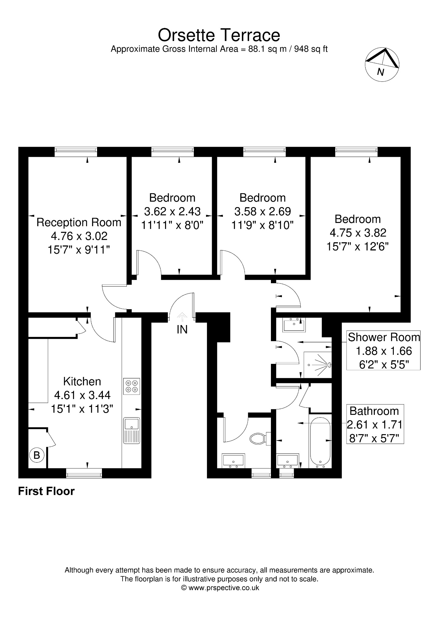
Set on the first floor of a well-maintained period building, this three-bedroom apartment offers well-balanced proportions, good natural light and a private balcony, all within easy reach of Paddington, Royal Oak and Westbourne Grove.
The flat opens into a wide entrance hall, giving a good sense of space from the outset. At the front, the reception room is bright and inviting, with tall sash windows, high ceilings and room for both living and dining. The separate kitchen is well fitted, with good storage, modern appliances and a neutral finish.
There are three comfortable double bedrooms, each with space for wardrobes and desks. The principal bedroom provides direct access to a private balcony, overlooking the quiet residential street below. The flat also includes two bathrooms, one with a walk-in shower, the other with a full-size bath, plus a separate WC and laundry cupboard.
Offered with a long lease and in good condition throughout, this is an excellent home or investment in one of West London’s best-connected locations.
Material Information (as provided by the owner):
Tenure: Leasehold
Length of lease: Approximately 89 years remaining (term from March 1989 to March 2114)
Service charge: £3,900 per annum
Council Tax Band: F
Location
Description
First floor Flat
Chain Free
3 Double Bedrooms
2 Bathroom
High ceilings
Kitchen Dining
Set on the first floor of a well-maintained period building, this three-bedroom apartment offers well-balanced proportions, good natural light and a private balcony, all within easy reach of Paddington, Royal Oak and Westbourne Grove.
The flat opens into a wide entrance hall, giving a good sense of space from the outset. At the front, the reception room is bright and inviting, with tall sash windows, high ceilings and room for both living and dining. The separate kitchen is well fitted, with good storage, modern appliances and a neutral finish.
There are three comfortable double bedrooms, each with space for wardrobes and desks. The principal bedroom provides direct access to a private balcony, overlooking the quiet residential street below. The flat also includes two bathrooms, one with a walk-in shower, the other with a full-size bath, plus a separate WC and laundry cupboard.
Offered with a long lease and in good condition throughout, this is an excellent home or investment in one of West Londonâ??s best-connected locations.
Material Information (as provided by the owner):
Tenure: Leasehold
Length of lease: Approximately 89 years remaining (term from March 1989 to March 2114)
Service charge: £3,900 per annum
Council Tax Band: F
Floorplan
EPC
To discuss this property call our Kensington branch: